住まいの実例100Life

マンションリフォーム
リビングが暮らしの中心のマンションリノベ
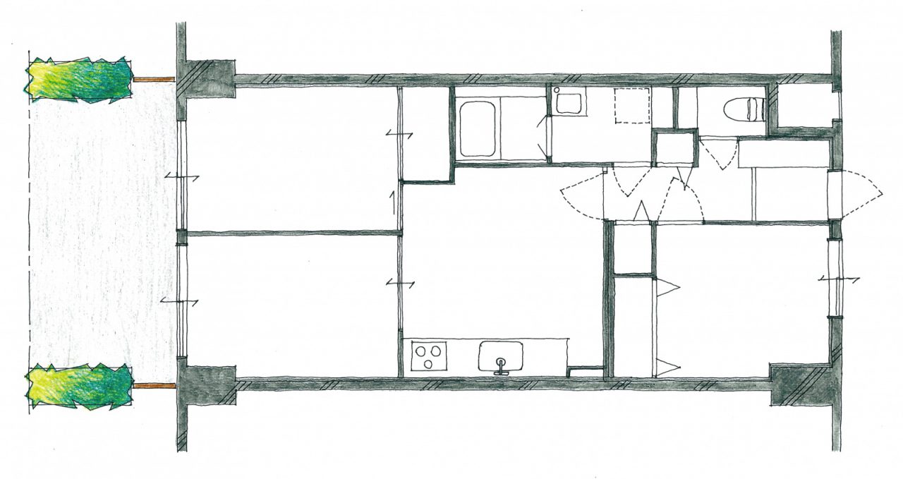
3LDKから1LDK+ワークスペースに。視線を遮らない低い家具で居場所を緩やかに仕切ることで無駄なく広々と使えるようになりました。
ストーリー
息子さんが歩き回るようになり、以前の住まいが手狭になったことから住み替えを計画。次に引っ越すなら自分たちに合う住まいにしたいと、リノベーションができる中古マンションを探しました。決め手になった点を伺うと「ゴミ置場がきれいで、修繕履歴からきちんと手入れされてきたことがわかったので」と奥様。次は設計・施工会社探しです。他社にも依頼しましたが、間取りに希望が反映されていなかったり、奇抜だったりしたことから見送ることに。そんな中、知人をきっかけに知った相羽建設のプランは「希望を汲みつつ、広さとほどよい区切りがあって暮らしをイメージできたんですよね」とご主人。奥様も「大工さんも自社なので、安心感がありました」と決め手を教えてくださいました。コロナ禍で設計当時とはライフスタイルが変化しましたが、どのように過ごされているのか、現在の暮らしぶりを伺いました。

ゆるく区切られた 伸びやかなLDK
友人を自宅に招くことが多いA様。以前は3DKと細かく区切られた間取りでしたが、大人数でも過ごしやすいように、リビングを広くとった1LDK+WIC+ワークスペースへとリノベーションしました。「個室よりも、長く過ごすLDKを広くとりたかったんです」とご主人。こだわった珪藻土の壁に、ご主人の趣味のオーディオや、以前の住まいでも飾っていた絵が映えます。「予算を掛けてでも珪藻土がいいなと思ってできるだけ塗り壁にしました。フラットな中にも照明が当たったところの素材感がいいですし、乾燥する日は水を吹きかけると上手い具合に調湿してくれていいんですよ」(ご主人)。空間の広がりを感じられるよう、リビングダイニングとキッチンとは大きなカウンターで仕切りました。「以前の住まいではキッチンに仕切りがなく、キッチンでいたずらをしないか心配で目が離せなかったんですけど、今はリビングダイニングから離れたので、子どもと過ごすことが楽になりました」と奥様。下の階は店舗のため、息子さんが走り回っても気兼ねすることなく、のびのびと子育てを楽しんでいらっしゃる様子でした。





住まいのみどころ
■デッドスペースをなくし空間を有効活用■
本棚とキッチンカウンターを設けて“ただの廊下”にしなかったのもポイントです。戸を開け放てば玄関からLDKまで唐松のフローリングが伸び、息子さんの遊ぶスペースに。キッチンと洗面台にはベーシックなタイルを選び、空間のアクセントにしました。






■ほどよい距離感のワークスペース■
ご主人が仕事を自宅ですることや、奥様がアクセサリー作りなどが好きなこともあり、LDKの一角に大きな本棚があるワークスペースを設けました。コロナ禍でお二人とも自宅でのテレワークとなり、思いがけずこのスペースが活躍しています。




取材後記
お邪魔した当初は息子さんがバルコニーから様子を伺っていましたが、慣れるとかわいい笑顔を見せてくれました。バルコニーが広いのもA様邸の魅力。外出自粛期間中もバルコニーで遊んだり、キッチンカウンターでパンをつくったりとお家時間を楽しまれたそうです。ご協力をありがとうございました!
(記:ライター大川)

