ブログ
木造戸建てリノベーション始まりました!
築30年ほどの建売住宅にお住いの70代ご夫婦が今のお住まいで悩んでいらっしゃることをご相談に来てくださいました。
この当時、建てられた時に多かった、リビング和室・階段下トイレの段差・寒さ問題・壁面キッチン。
Sさまからのご要望は、
・1階の和室を洋室に(押入れも直したい)
・トイレが一段下がっているのをフラットにしたい
・浴室周りが冬寒いので、廊下側からではなくキッチンの方から洗面所の出入りをしたい。
・キッチンが大きいので幅を狭くして壁をたてた冷蔵庫置場を作りたい。
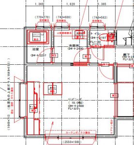
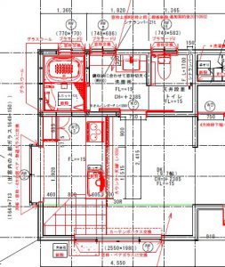
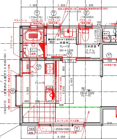
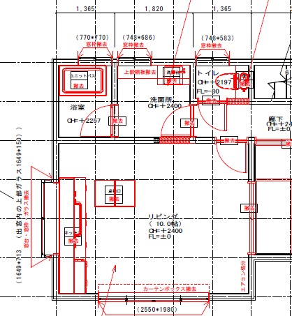
①リフォーム前 ②リフォーム後
ご自宅を拝見させていただき、私が気になったことが
玄関入って真正面にある、浴室。換気をしておきたいけど、丸見えになってしまう。
押入れが使いにくい。階段が急なので2階への上り下りを少なくするために普段使いの洋服は、1階に置いておきたい。
キッチンが丸見えでガスコンロの脇にカーテンがあり、引火が心配です。
階段下のトイレに段差がある。高さを確保することとスリッパを置いた時に扉に当たらないようにするために。
今回は、1階部分を中止に工事をさせていただきます。
まだ、解体工事に着手したばかりです。
建物の完成見楽会は、10月上旬を予定しております。
また、お知らせをさせていただきます。
下記の日程で相談会を開催していますが、ご予定が合わない方はご希望の候補日をいただければ調整可能です。
今後の完成見楽会予定
●府中市 マンションリノベーションも進行中です。
8月上旬 完成見楽会開催予定
●所沢市 戸建て住宅リノベーション
10月上旬 完成見楽会開催予定
相羽照美





