【1日限定開催】奈良橋テラスハウス完成見楽会(終了)
見楽会終了
日付
2021年5月15日(土)
時間
10:00-16:00
会場
奈良橋テラスハウス(東京都東大和市内)
参加費
無料
定員
各回2組、1時間毎入替え制
その他
*見楽会は1時間毎入替え制です。
*近隣に駐車場のご用意がありますのでお申し込み時にお車の方はお知らせください。
*電車来場の方は、最寄駅(上北台駅又は武蔵大和駅)から送迎もできます。ご予約の15分前までに駅にご到着ください。
 到着しましたら【090-7738-2593】へお電話ください。
*ご予約の際にはご来場時の人数(大人・子ども)と見学希望の時間帯・来場方法をお教えください。
 時間帯…10:00/11:00/12:00/13:00/14:00/15:00
*詳しい住所はご予約の際にお知らせします。
*当日のご連絡先:090-7738-2593

森に面した「アトリエのある居心地の良い住まい」

『緑あふれる景色
 まるで絵本の世界に
 飛び込んだよう――』


築41年を迎えるテラスハウスを改修し、
大きな窓から森の木々を眺められる素敵な空間が完成しました。

2階の居住スペースは時間を忘れて居心地良く過ごせる場所。
1階のアトリエはオープンな空間で、大切な道具をおさめるアトリエ。

東京とは思えない緑に包まれたロケーションにある住まい、
1日だけの完成見楽会でお披露目します。

一枚の絵画のような景色
一枚の絵画のような景色
映像|見楽会直前の現地から
リビングの開口部から光がまわりこむように勾配天井とし、照明も壁付としている
リビングの開口部から光がまわりこむように勾配天井とし、照明も壁付としている
キッチンからも窓の外を眺められる
キッチンからも窓の外を眺められる
造作のキッチン。調理スペースやパントリーも広めに計画
造作のキッチン。調理スペースやパントリーも広めに計画
カウンターはナラ材、キッチンの照明はオーナーがセレクト
カウンターはナラ材、キッチンの照明はオーナーがセレクト
一階へつながる階段
一階へつながる階段
浴室から緑の景色を楽しめる、さながら別荘のようなロケーション
浴室から緑の景色を楽しめる、さながら別荘のようなロケーション
改装後のLDK
改装後のLDK
改装前のLDKの様子
改装前のLDKの様子
工事前の1階。当初、キッチンは1階にあったがリノベーションにあわせて2階のLDKへ移動した。
工事前の1階。当初、キッチンは1階にあったがリノベーションにあわせて2階のLDKへ移動した。

中古の鉄骨造テラスハウスの一戸をフルリノベーション

断面イメージ
断面イメージ

鉄骨造2階建ての奈良橋テラスハウスの角部屋をフルリノベーション。
2階北側の玄関からアプローチすると、南リビングのテラス窓から見えるのは一面の緑のみ。

アトリエとなる階下は広いワンルームでお客様によるDIYでこれからゆっくりと仕上げてゆきます。

外構は経年による傷みを補修しつつ、広いピロティの先に新しく外階段も設けました。

オンもオフも楽しめそうな“秘密基地感”たっぷり。
「家って自由」そんなワクワクを感じられる住まいです。

外壁はグレーに塗り替えられ、照明とあわせてシックな雰囲気に。扉は木張りになる予定。
外壁はグレーに塗り替えられ、照明とあわせてシックな雰囲気に。扉は木張りになる予定。
使い方のアイディアが広がるオープンな駐車スペース
使い方のアイディアが広がるオープンな駐車スペース
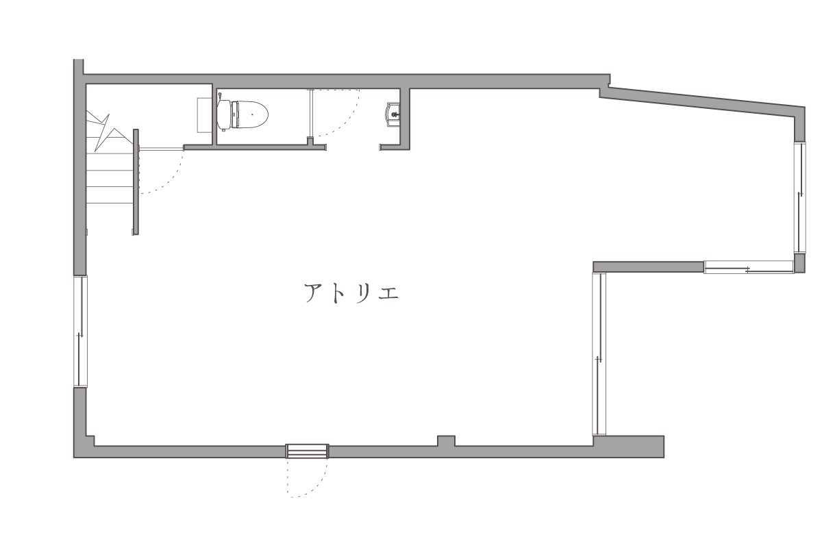
2F
2F
1階のアトリエスペース。床はりと壁の仕上げはオーナーが知人とDIYで工事を進めている。
1階のアトリエスペース。床はりと壁の仕上げはオーナーが知人とDIYで工事を進めている。
DIY工事が進み、床材がはられている様子
DIY工事が進み、床材がはられている様子
改装前の1階。もともとあった壁を取り壊して空間を広げている
改装前の1階。もともとあった壁を取り壊して空間を広げている
天井の鉄骨や配管などを現しにした様子
天井の鉄骨や配管などを現しにした様子
水洗金物も使うのが楽しみになるセレクト
水洗金物も使うのが楽しみになるセレクト
1F
1F
既存建物の増築されていたスペースは要不要を見直して減築を行い、鉄骨階段を新設している。
既存建物の増築されていたスペースは要不要を見直して減築を行い、鉄骨階段を新設している。
工事前
工事前
工事中
工事中

*ご予約の際にはご来場時の人数(大人・子ども)と見学希望の時間帯・来場方法をお教えください。
時間帯…10:00/11:00/12:00/13:00/14:00/15:00