東京都府中市|マンションリノベ「光と風が届く家」完成見楽会(終了)
見楽会終了
日付
2021年8月8日(日)
時間
10:00-15:00
会場
「光と風が届く家」(東京都府中市内・JR府中本町駅より徒歩5分)
参加費
無料
定員
各回2組、1時間毎入替え制
その他
*見楽会は各回2組限定、1時間毎入替え制です。
*ご予約の際は ●ご希望の時間 ●ご来場の人数(大人・子ども)をお伝えください。
*詳しい住所はご予約の際にお知らせします。
*駐車場はございません。近隣のコインパーキングまたは公共交通機関をご利用下さい。
*当日のご連絡先:090-7738-2593
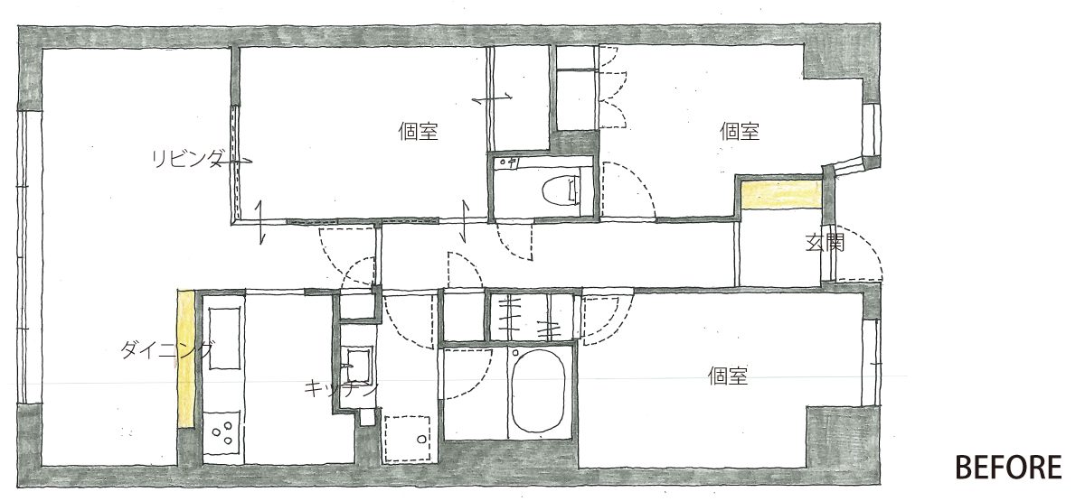
あいばこスタッフによる手描きのプラン紹介図。ぜひ見楽会会場で実際の空間とあわせてご覧ください!
あいばこスタッフによる手描きのプラン紹介図。ぜひ見楽会会場で実際の空間とあわせてご覧ください!

ご家族が夢描いた「光と風が届く家」

(施主のI様より)
私たちの家づくりは「木の家に住みたい」という想いからはじまりました。
あいばこの家づくりCAFEでは、照美さんと暮らしや間取りの希望について気軽に相談する事ができました。
私たちがイメージした「光と風」、「動線の良いキッチン」、「老いを見つめた間取り」について太田さんと共有し、細かい部分まで丁寧に設計して頂きました。期待していたバルコニーからの自然光は室内の奥まで届き、間取りは回遊できる柔軟性を持ちました。それを現場の和田さんや職人さんの技術で木の温もりある家にして頂いたので、次は私たちが少しずつ育てていきたいと思います。

畳コーナーを設けたリビングダイニングからキッチンを眺める
畳コーナーを設けたリビングダイニングからキッチンを眺める
キッチンやカウンターは造作で製作。キッチンと脱衣所の間に室内窓を設けたことで光や風が室内に気持ちよく抜ける空間となっています。
キッチンやカウンターは造作で製作。キッチンと脱衣所の間に室内窓を設けたことで光や風が室内に気持ちよく抜ける空間となっています。
キッチンから南面のバルコニーを眺める
キッチンから南面のバルコニーを眺める
見楽会では、アイノ・アアルトさんがデザインしたエクステンションテーブルをしつらえてお披露目予定です!
見楽会では、アイノ・アアルトさんがデザインしたエクステンションテーブルをしつらえてお披露目予定です!
キッチンの収納棚は用途によって可変できます。
キッチンの収納棚は用途によって可変できます。
リノベーションで開放的な空間になった玄関スペース
リノベーションで開放的な空間になった玄関スペース
手狭だった空間を広げて生まれ変わった玄関スペース。大きな収納量のウォークインクローゼット。
手狭だった空間を広げて生まれ変わった玄関スペース。大きな収納量のウォークインクローゼット。
帰宅時にすぐに手洗いができる洗面スペース
帰宅時にすぐに手洗いができる洗面スペース

設計から

今回は30・40代ご夫婦のリノベーションです。
ご購入された中古物件のお宅にお伺いした際、一番のご要望は南面からの光をお宅全体に取り込みたいとの事でした。部屋窓を設けたり、壁を天井までいかない様にと工夫を施しました。 先日 I 様と工事中の現地確認したところ、 『玄関まで日が差し込んできて明るい‼』と感動されていらっしゃいました。
キッチンは料理を作っている時間も孤立せず見晴らしのいい景色が眺められるように、お二人でお料理しても動線がスムーズに、と細かく配置を配慮しました。マンション特有の梁で納まりきらないレンジフードもお探しし、難しい要件をクリアしております。北欧のアンティーク家具にもこだわられた、おしゃれなご夫婦のゆとりのある生活。お時間ありましたら、是非一度いらしてください。

設計:太田礼美
設計:太田礼美


*ご予約の際は ●ご希望の時間 ●ご来場の人数(大人・子ども)をお伝えください。
*当日のご連絡先:090-7738-2593