柔らかな光の家完成見楽会(終了)
見楽会終了
日付
2022年8月20日(土)
時間
10:00-17:00(最終16:00)
会場
柔らかな光の家(東京都世田谷区内)※詳しい情報はご予約時にお伝えします
参加費
無料
定員
各回2組、1時間毎入替え制
その他
*当イベントは家づくり検討中・現在建築中の方に限ります。
*ご見楽の際は手袋・靴下の着用をお願いします。
*撮影はご遠慮下さい。
*駐車場はございません。近隣のコインパーキングまたは公共交通機関をご利用下さい。
*当日のご連絡先:090-7738-2593

ご夫婦のためのコンパクトで豊かな住まい

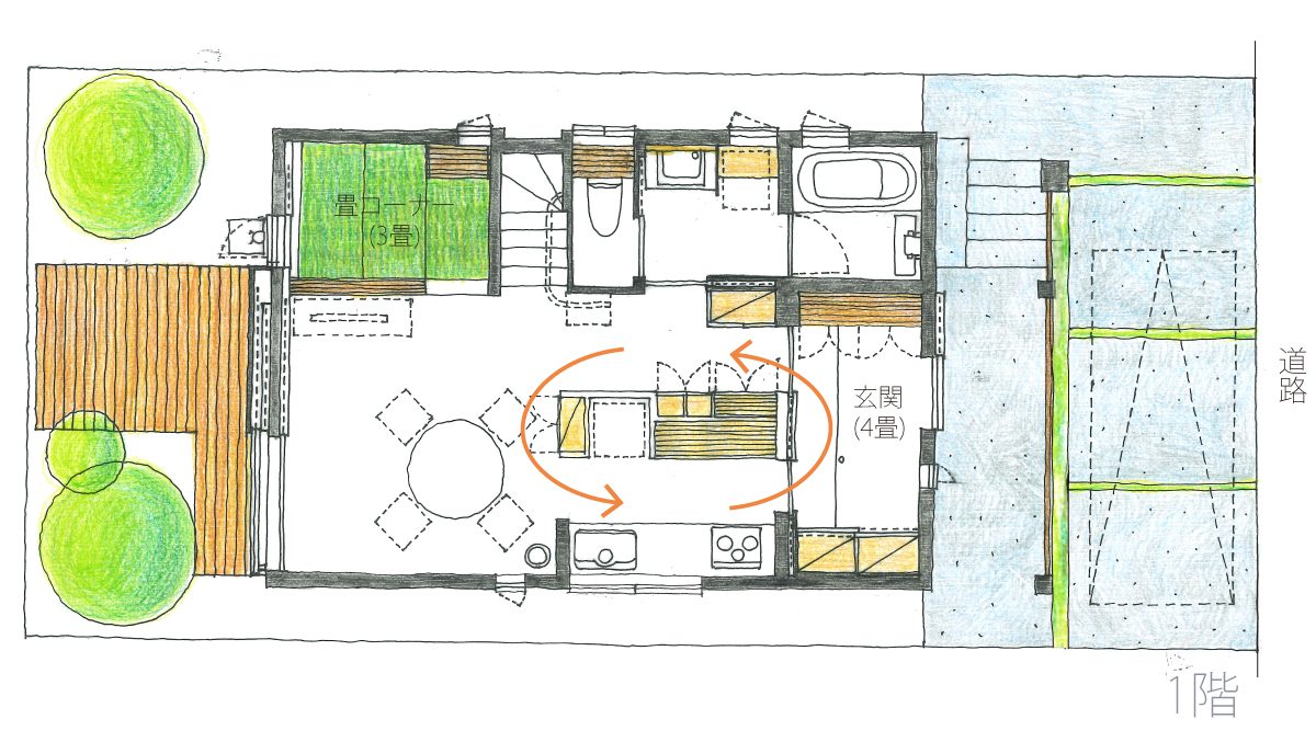
暮らしに寄り添う動線の設計建物が密集する地域でも明るい1階リビング

吹き抜けからの光によって、建物が密集する地域でも明るい1階リビングに。壁は薩摩中霧島壁で仕上げ、掃き出し窓には障子を設けることで、柔らかな光に包まれた温かみのある空間になりました。1階はリビングと水回りを配置し、各スペースを回遊動線が結びます。動線の途中には季節ごとの設えを楽しむための飾り棚や絵を飾るスペースも設けています。
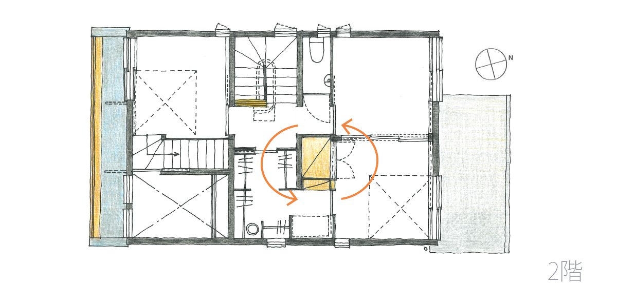
2階は4畳半と9畳の個室とWICを配置しました。9畳の個室は可動間仕切りで2つに分けることができ、お子様が帰省された際に泊まれるようにしています。通り抜け出来るWICやロフトへ続く階段は広がりを感じる要素となっています。(記:設計松本)

回遊動線で結ばれた1階 庭の植栽デザインは小林賢二さん(暑さが和らいだ時期に施工しますので見楽会ではご覧いただけません)
回遊動線で結ばれた1階 庭の植栽デザインは小林賢二さん(暑さが和らいだ時期に施工しますので見楽会ではご覧いただけません)
リビング…木製の格子戸で外の景色を程よく遮断できます。障子にもできます。
リビング…木製の格子戸で外の景色を程よく遮断できます。障子にもできます。
回遊動線で結ばれた1階 収納スペースをぐるっと回れます。ゴミ出しなど何かと便利。
回遊動線で結ばれた1階 収納スペースをぐるっと回れます。ゴミ出しなど何かと便利。
細部のこだわり 壁と収納の扉の境目も職人さんの技術により違和感なく綺麗に収まっています。
細部のこだわり 壁と収納の扉の境目も職人さんの技術により違和感なく綺麗に収まっています。
階段ホール 薩摩中霧島壁を施したホールは、家の落ち着いた雰囲気を際立たせています。
階段ホール 薩摩中霧島壁を施したホールは、家の落ち着いた雰囲気を際立たせています。
2階も収納スペースを中心にぐるっと回れます。
2階も収納スペースを中心にぐるっと回れます。
4畳半の個室 大きな窓からバルコニーへ。小屋裏へ抜ける階段も設けています。月桃紙の壁が温かい雰囲気を演出しています。
4畳半の個室 大きな窓からバルコニーへ。小屋裏へ抜ける階段も設けています。月桃紙の壁が温かい雰囲気を演出しています。
ビングの吹き抜け 窓から注ぐ陽の光も、薩摩中霧島壁に反射して柔らかく届きます。
ビングの吹き抜け 窓から注ぐ陽の光も、薩摩中霧島壁に反射して柔らかく届きます。
9畳の個室 広い個室はご夫婦の寝室。お子様が帰省の際は泊まれるように可動仕切りも設置しています。
9畳の個室 広い個室はご夫婦の寝室。お子様が帰省の際は泊まれるように可動仕切りも設置しています。

□建物概要/ 木造2階建て □敷地面積/ 107.35㎡(32.47坪) □延床面積/ 84.46㎡(25.5坪)
□仕上げ/ 屋根:ガルバリウム鋼板 外壁:ジョリパット 窓:樹脂窓、木製窓 天井:月桃紙貼
内壁:薩摩中霧島壁、月桃紙貼、サワラ材 床:パイン材、畳
□性能/ 耐震性能:耐震等級3 断熱性能:UA値0.46w/㎡K(HEAT20・G2)
設備:壁掛けエアコン、OMソーラー、太陽光発電
□担当/ 営業:新次郎 設計:松本翔平 監督:堀野浩司 大工:中山善弘 中山和弘

*当イベントは家づくり検討中・現在建築中の方に限ります。
*ご見楽の際は手袋・靴下の着用をお願いします。
*撮影はご遠慮下さい。
*詳しい住所はご予約の際にお知らせします。
*駐車場はございません。近隣のコインパーキングまたは公共交通機関をご利用下さい。
*当日のご連絡先:090-7738-2593
予約する