中古戸建リノベーション「湖畔の家(東京都東大和市)」現地見学・説明会(終了)
見楽会家づくり・暮らしセミナー終了
日付
2022年10月15日(土)
時間
10:00-17:00(1時間毎入替え制)
会場
東大和市内
参加費
無料
定員
各回2組、1時間毎入替え制
その他
○小さなお子様をお連れの方は、ご夫婦交代でご覧いただくか 、抱っこひも等をご利用いただくなど、住まいへの傷や汚れ予防にご協力願います。
○駐車場のご用意が叶わないので、近くのコインパーキングをご利用願います。
○住所の詳細はお申込み後にお送りします 。
○当日のご連絡先 090-7738-2593
*広報誌ainohaでは「東大和の家」としてお知らせしていた住宅と同じお住まいです。

戸建て再生プロジェクト|今ある物件を、減築・断熱・気密・耐震リノベーションを検討されている方へ

減築して断熱・気密・耐震を向上してリノベーションを行い、新築に近い暮らしを提案いたします!

今回の戸建て再生プロジェクトは東京都東大和市の中古戸建て物件。減築して断熱・気密・耐震を向上することによってどのような暮らしを実現できるのか、どのようなリノベーションが想定されるのか、実際に空間を体感しながらご案内いたします。

正式に名称が決まり「湖畔の家」と名付けられたこの家も、もちろん販売中。物件が気になる方、リノベせずにそのまま住みたいという方のご来場も大歓迎です。周辺には多摩湖や都の保全林があり、自然豊かな暮らしを実現できます。

1階和室
1階和室
1階リビング・和室
1階リビング・和室
1階リビング
1階リビング
1階ダイニング・キッチン
1階ダイニング・キッチン
2階洋室
2階洋室
2階洋室
2階洋室
2階バルコニーからの眺め
2階バルコニーからの眺め
外構
外構
玄関・廊下
玄関・廊下

違反建築を価値ある家へ

「湖畔の家」は、違反建築(面積オーバー)になっている建物を減築して法律に適合させての販売となります。

法律に適合させることで住宅ローンの利用が可能になり、構造・断熱をしっかり改修することで、新築に近い性能と耐久性を確保しながら、割安な家づくりが可能に。安心で、自分らしい、コストパフォーマンスも高い家づくりを考えてみませんか?

戸建リノベーションに興味がある方や、違反建築について相談がある方、新しい暮らしづくりをお手伝いいたします!

Renovation Program

1階 before
1階 before
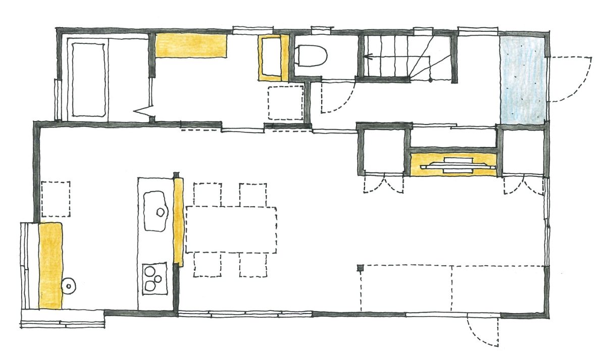
1階 after予定
1階 after予定

外壁:そとん壁(火山灰仕上げ)
サッシ:サーモスⅱ-H(アルミ樹脂複合サッシ) 玄関ドア:木製ドア 
床:パイン無垢材 内装壁:月桃紙
耐震等級:1(建築基準法適合性能) 
断熱性能:ヒート20・G1
販売価格:2,000万円 (既存販売)

物件概要はコチラ(あいばの不動産ページになります)

*広報誌ainohaでは「東大和の家」としてお知らせしていた住宅と同じお住まいです。

予約する
予約フォームでの受付は前日17時までです。それ以降はお電話にて問い合わせください。

担当スタッフ

私たちが担当します