家族5人とワンちゃんがのびのび暮らせる住まい完成見楽会 (終了)
見楽会終了
日付
2022年12月10日(土)
時間
10:00-17:00(最終16:00)
会場
家族5人とワンちゃんがのびのび暮らせる住まい(東京都国分寺市内)
参加費
無料
定員
各回2組、1時間毎入替え制
その他
*当イベントは家づくり検討中・現在建築中の方に限ります。
*ご見楽の際は手袋・靴下の着用をお願いします。
*撮影はご遠慮下さい。
*駐車場はございません。近隣のコインパーキングまたは公共交通機関をご利用下さい。
*当日のご連絡先:090-7738-2593

5人家族とワンちゃんのためのお住まい

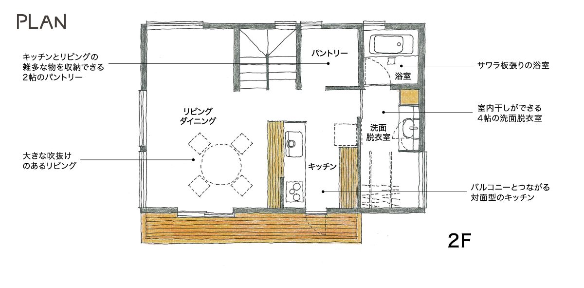
5人家族(ご夫婦+お子様3人)とワンちゃんのためのK様のお住まい。

K様は室内で木材や自然素材を感じられる木造ドミノ住宅を気に入ってくださいました。

プランのポイントとしては、
①隣家ができるだけ気にならない窓の配置(明かりの取り入れ方)と
②家族の成長とともに様々な使い方ができるような仕切りの少ない部屋と収納です。

特に個室は1人最低4.5帖は欲しくなるところですが、寝る場所、勉強場所、収納場所が全て1つの部屋に収まらなくても、こうなったらこう考えましょうとお打合せでいろいろな想定をしました。
小屋裏収納は3人の子どもたちの居場所としても考え、玄関や玄関ポーチもワンちゃんの居場所として広めにつくりました。
K様ご家族がのびのび暮らせる住まいになったと思います。
(設計・中村健一郎)

2階居室
2階居室
キッチン
キッチン
キッチン収納
キッチン収納
2階居室
2階居室
階段
階段
洗面
洗面

建築概要
面積 敷地面積:146.95㎡(44.36坪)  延床面積:89.42㎡(27.00坪)
仕上 屋根:ガルバリウム鋼板 外壁:ガルバリウム鋼板 窓:樹脂窓
天井:和紙、構造あらわし 内壁:和紙 床:パイン材、豆砂利洗い出し
性能 耐震性能:耐震等級3(性能表示計算) 断熱性能:UA値0.41(HEAT20・G2)
設備 壁掛エアコン、3種換気(自然給気、壁付パイプファン)
担当 営業:豊福、設計:中村、工事:橋詰、大工:高橋

*当イベントは家づくり検討中・現在建築中の方に限ります。
*ご見楽の際は手袋・靴下の着用をお願いします。
*撮影はご遠慮下さい。
*詳しい住所はご予約の際にお知らせします。
*駐車場はございません。近隣のコインパーキングまたは公共交通機関をご利用下さい。
*当日のご連絡先:090-7738-2593

予約する
予約フォームでの受付は前日17時までです。それ以降はお電話にて問い合わせください。