
小手指駅から徒歩“3分”
団地があるのは、埼玉県所沢市に位置する小手指。再開発が進む「所沢駅」から2駅、都心へのアクセスしやすい傍ら茶畑などの風景がのこる穴場な街です。駅前にはカフェ・本屋・ドラッグストア・コンビニがあり徒歩1,2分圏内でスーパーや病院もあります。こだわりの飲食店も点在し、始発駅なので朝は座って通勤も可能。休日は都内へ電車でお出かけするもよし、飯能方面へリフレッシュしに行くもよし、遊びの幅が広がりそうです。
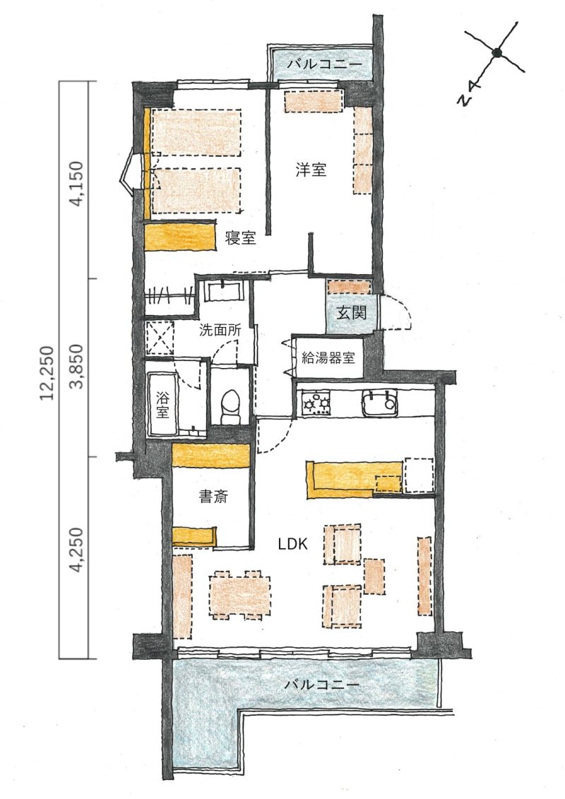
団地ではありますが快適性も持ち合わせています!
令和4年に大規模修繕工事が完了し外壁など共用部はもちろん床下の給水給湯管から玄関ドアに至るまでリフォーム済み。その際に浴室・トイレ・洗面・インターホン(モニター付き)も新しく交換しました。「唯一古いのはトイレのドアくらい」とオーナー様、見学にいらした際はご確認ください。この棟は各住戸が階段状に一部屋分スライドして連結している設計のため、隣家の生活音も気になることなく、またバルコニーへ出てもお隣さんと目が合いにくいです。
自然素材の空間
リビングの壁は薩摩中霧島の左官仕上げ、居室の床はナラ材で各室オールフラットに。キッチンは広さと奥行きを確保し、両壁はマグネット仕様で吊戸棚はコンセントを備えたりと工夫が凝らされています。3年前にリノベーションしたものの、オーナー様は仕事の関係で週に2日帰る程度だったそうで、実質生活した時間を考えると1年程とのこと。まだまだ現役なこのお部屋を大切に引き継いでくださる方、お待ちしております。
あいばの不動産 販売情報はコチラ
予約する
*予約フォームでの受付は前日17時までです。それ以降はお電話にて問い合わせください。
*見楽会は各回2組限定、1.5時間毎入替え制です。
*購入をご検討の方、もしくは弊社の施工範囲内で家づくりをご検討中の方、弊社で設計・建築中の方、住まい手様が対象です
*小学生以下のお子様がいらっしゃる場合は目を離さずに手をつないでご見学ください
*撮影はご遠慮ください
*詳しい住所はご予約の際にお知らせします
*駐車場はございません。近隣のコインパーキングまたは公共交通機関をご利用ください
*当日のご連絡先:090-7738-2593