不動産情報
価格見直し!中古一戸建て_コンパクトハウス | 東村山市3,850万円
小さく、
ちゃんと、
使いやすい。
【各所に気が利く収納】
【ぎゅっと動きやすいキッチンと水廻り】
【手入れの行き届いた住まい】
【OMソーラー】
【庭+小屋生活】

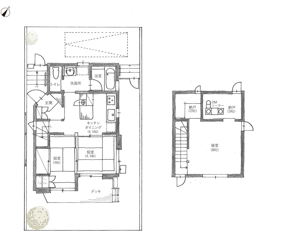
中央のダイニングを中心に水廻りがぐるっとコンパクトにまとまった家事ラクな間取りが魅力!
設計者さんの工夫が感じられます。
2人暮らし、単身者の方におススメな広さではありますが3人暮らしもできそうです。
東村山市の住宅街に建つ、コンパクトな住宅です。
相羽建設で2008年に建てられましたが丁寧な暮らしを経て
パインの無垢板は美しい経変美化を見せています。

駅からは歩くと26分、決して近いとは言えません。
その分、静かな住宅環境にあります。
延べ床面積65㎡で暮らしと仕事を両立できる間取りです。
南側の庭に小さな小屋を増築することも可能。
離れのある暮らしを楽しむこともできます!
OMソーラーシステムを搭載しているので冬は太陽熱を
利用して建物内を暖めます。
平面図

建物写真





現地案内
物件概要
□販売価格 / 3,850万円
□所在地 / 東村山市青葉町2-14-30
□交通 / 西武新宿線「東村山駅」徒歩24分(1900m)
□土地面積 / 103.16㎡(公簿) 他私道持ち分あり(32.71㎡)
□地目 / 宅地
□土地権利 / 所有権
□都市計画 / 第1種低層住居専用地域、市街化区域、第一種高度地区、準防火地域
□建ぺい率 / 50%
□容積率 / 100%
□接道状況 / 北約5.45mアスファルト私道
□設備 / 公営水道、公共下水、東京電力、都市ガス
□建物構造 / 木造2階建て
□建物面積 / 1階:40.16㎡、2階:24.84㎡、延べ床面積65.00㎡
□建物築 / 2008年4月竣工
□取引態様 / 媒介
□引き渡し時期 / 相談
□その他 / OMソーラーシステム搭載、駐車スペースあり(1台)
現地案内が可能です。ご連絡下さいませ!
不動産情報(土地探し・物件売買)のお問い合わせ
現地案内も可能です。ご希望の方は下記よりお問い合わせください。